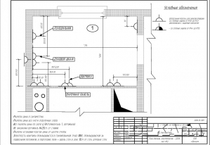
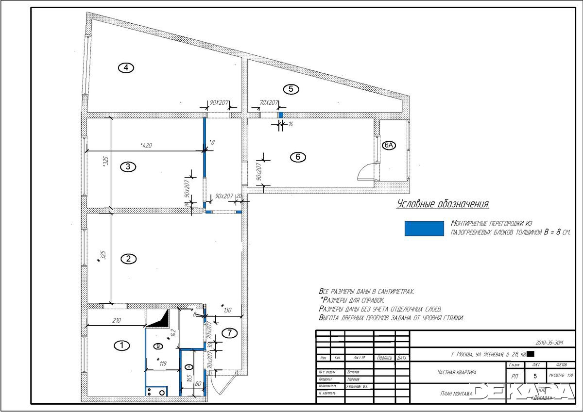
Чертежи квартиры - ул. Ясеневая, д. 28
Комментирует прораб объекта, :
Квартира насышена нестандартными отделочными решениями, большинство из которых предложено Заказчиком. Практически в каждой комнате встречаются гипсокартонные конструкции, в т.ч. оранжевый потолок, который переходит в короб на трубы отопления. За счет умелого зонирования, в каждом помещении дополнительно зрительно выделены зоны разных назначений - спальное место, рабочая зона, спортивный городок и т.д. В процессе работы, я предложил Заказчику несколько вариантов зонирования и несколько вариантов декоративных конструкций.












