Чертежи квартиры - Проспект Вернадского, д. 105
Комментирует прораб объекта, :
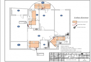
Большой по объему проект, сложный в техническом отношении. Напорные трубы по горячему и холодному водоснабжению проведены на кухню от стояков, расположенных в санузле, через потолок. Коммуникации к внутренним блокам кондиционеров также разведены за натяжными потолками. В проект заложено множество проходных выключателей, сложная электрическая схема подключения внутриквартирного электрощита.
Расстояние от варочной поверхности до внутридомовой вентиляции более 7 метров, поэтому предусмотрен дополнительный вентилятор.














