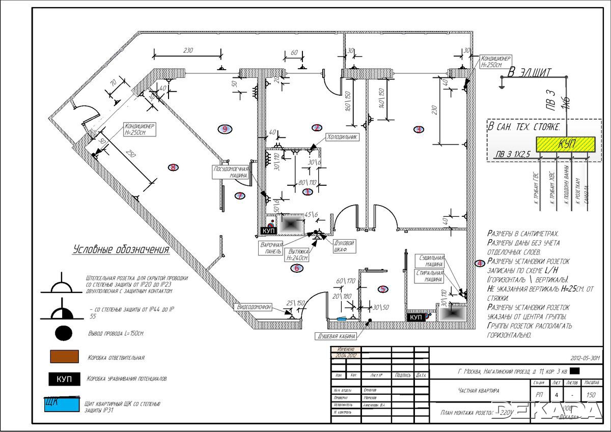
Чертежи квартиры - Нагатинский проезд, д. 11, корп. 5
Комментирует прораб объекта, :
Квартира на момент начала ремонта не имела внутренних стен. Заказчику было предложено несколько вариантов планировочных решений. Было выбрано решение с разделение общей площади квартиры на много небольших изолированных помещений. Таким образом была отдельно от кухни выделена столовая, запланирован кабинет, гардеробная и другие небольшие помещения. Также длинный балкон, идущий вдоль всей фасадной стены, был разделен перегородкой на 2 раздельных балкона.







