Чертежи квартиры - ул. Гарибальди, д. 7
Комментирует прораб объекта, :
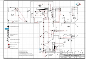
Квартира большой площади без внутренних стен и перегородок. Предложены несколько планировочных решений, одно из которых и утверждено Заказчиком. На системы вентиляции, кондиционирования, горячего и холодного водоснабжения и канализации, были разработаны инженерные проекты. Также составлен электропроект. Стояки горячей и холодной воды находятся у входной двери, поэтому трубы для горячего и холодного водоснабжения уложены в стяжку. Спроектирована система звукоизоляции пола и отдельных стен.







