Чертежи квартиры - ЖК Бутово-Парк, д. 23, корп. 1
Комментирует прораб объекта, :
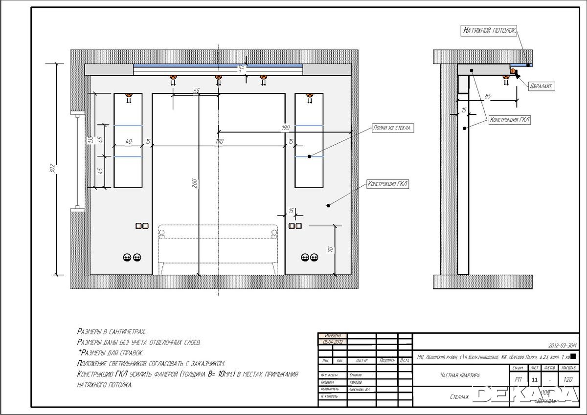
Сложная для проектирования квартира удлиненной формы, всего с двумя окнами. Поскольку Заказчик хотел иметь две комнаты - получалось, что кухня не имеет окна и естественного освещения. Было предложено решение сделать в перегородке между гостинной и кухней оконные проемы, и выбрать стеклянную прозрачную дверь. Ну и, конечно, было предложено Заказчику большое количество декоративных потолков, стеллажей и ниш.


















