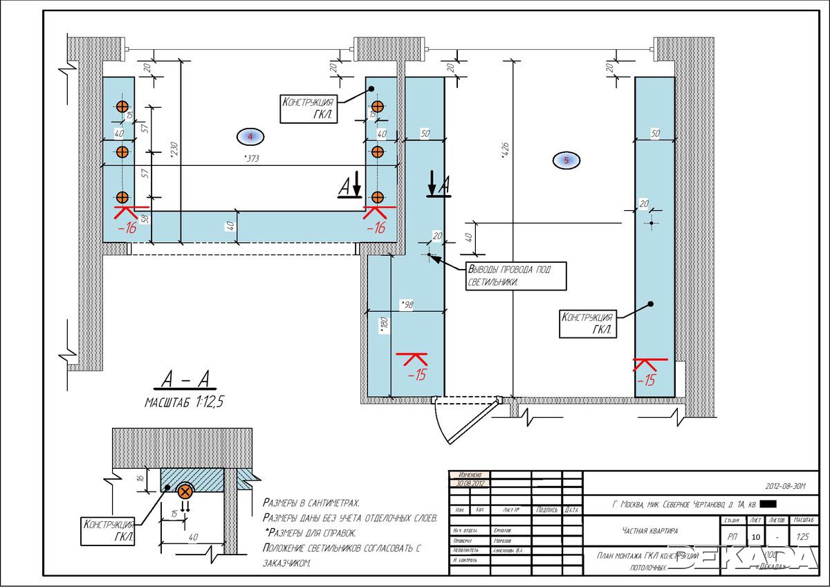
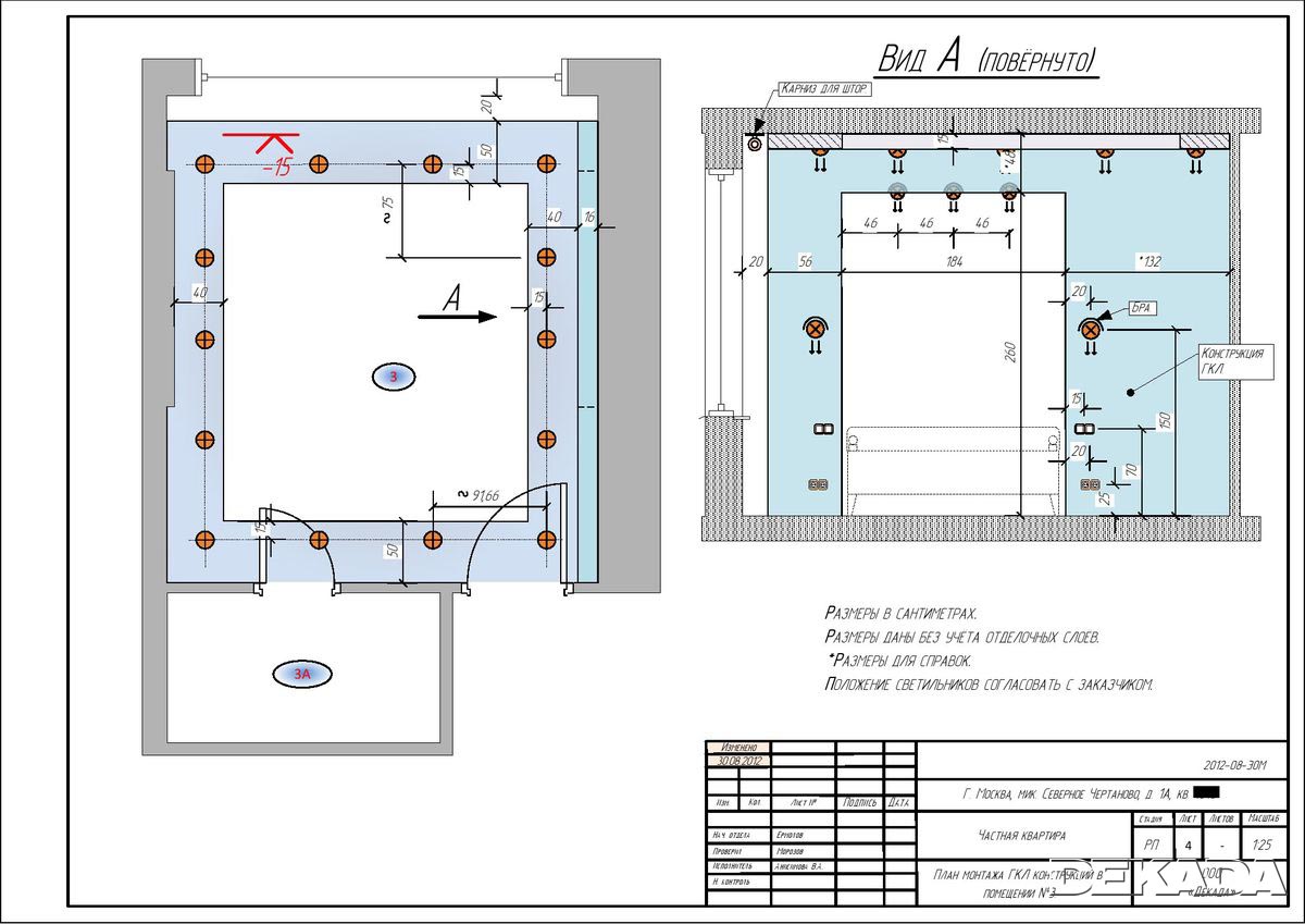
Чертежи квартиры - ЖК Авеню-77, корп. 3
Комментирует прораб объекта, :
В исходном виде в квартире не было перегородок, поэтому была возможность наилучшим образом спроектировать планировочное решение по расстановке межкомнатных стен и перегородок. В процессе перебора многих вариантов планировок было придумано интересное решение по центральному помещению этой квартиры: объединенное пространство "гостинная - кухня". Для освещения кухни выбраны светопроводящие раздвижные многосекционные двери. Таким образом получается, что даже при закрытых дверях в кухню попадает естественное освещение.













